Prezentacja dokumentu:
| Numer | Z dnia | Informacje o dokumencie |
|---|---|---|
| Pobierz dokument | Załączniki | |
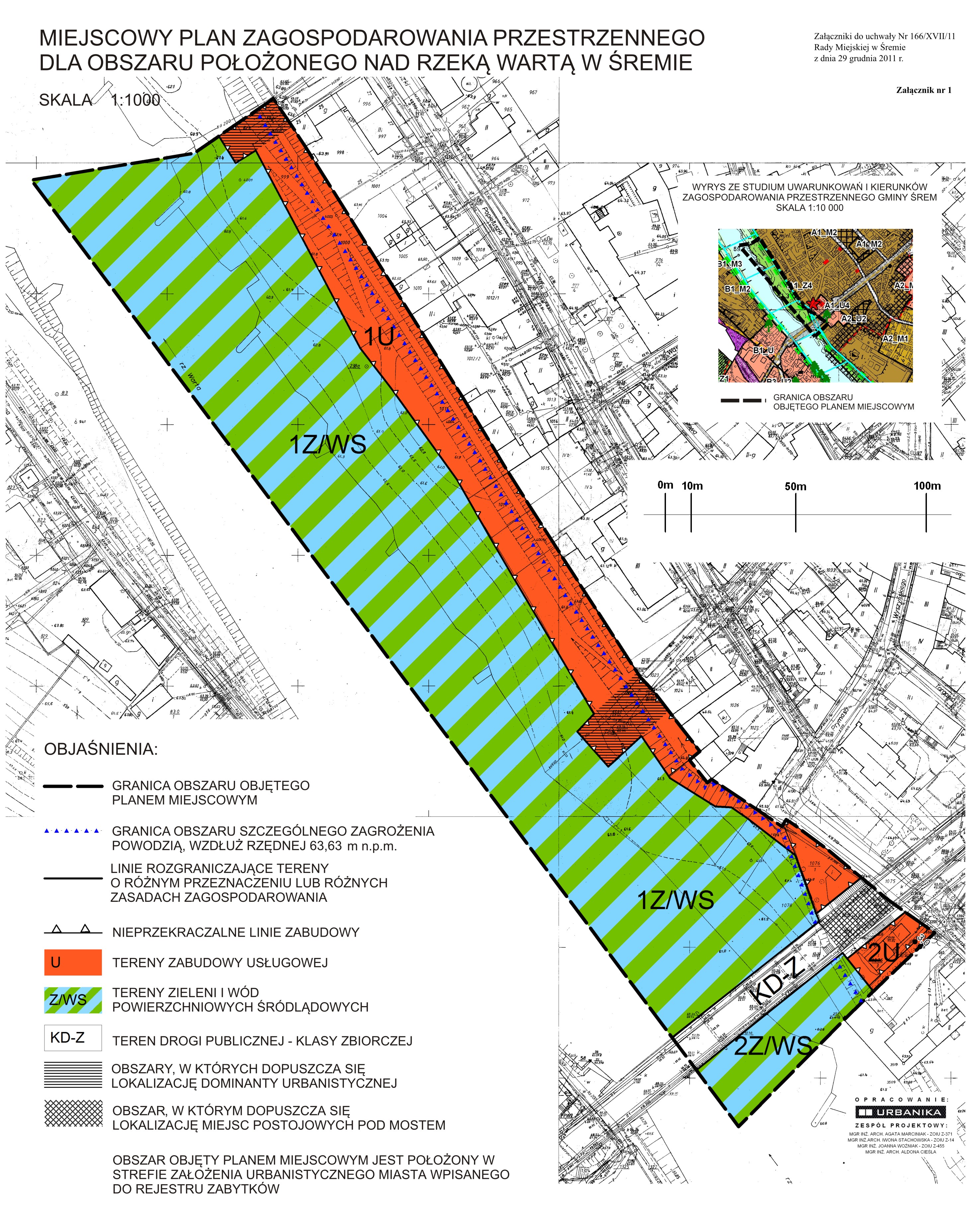
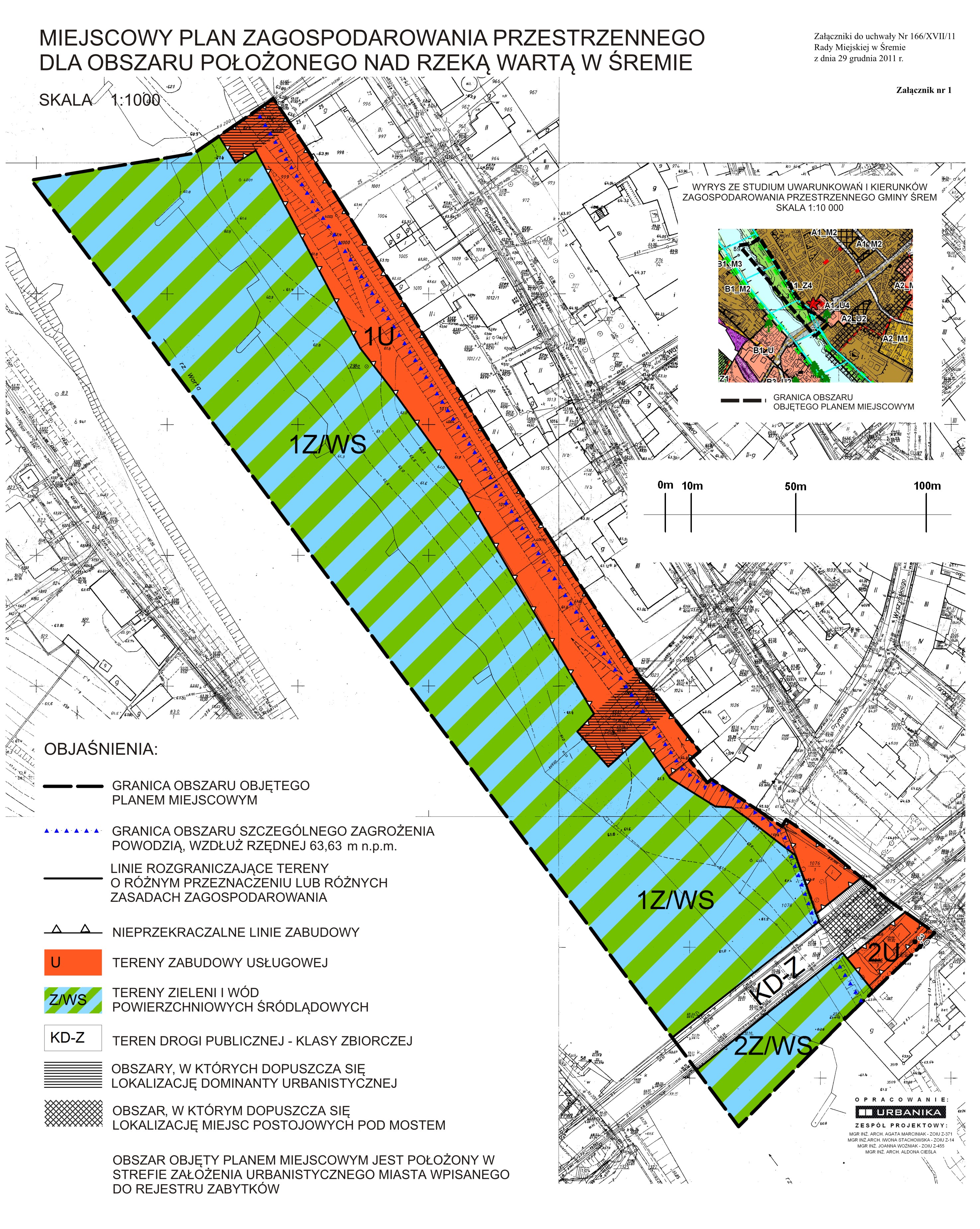
| 166/XVII/11/ZAL1 Obowiązujący |
Z dnia (2012-01-24) |
Zał. Nr 1 Załącznik dokumentu Autor dokumentu: Zofia Kłak Udostępnił:
Wartecki Adrian
(2012-01-25 11:36:04)
Ostatnio
zmodyfikował:
|