Prezentacja dokumentu:

Numer Z dnia Informacje o dokumencie
Pobierz dokument Załączniki
431/XLVIII/10/ZAL5
Obowiązujący
Z dnia
(2017-03-28)
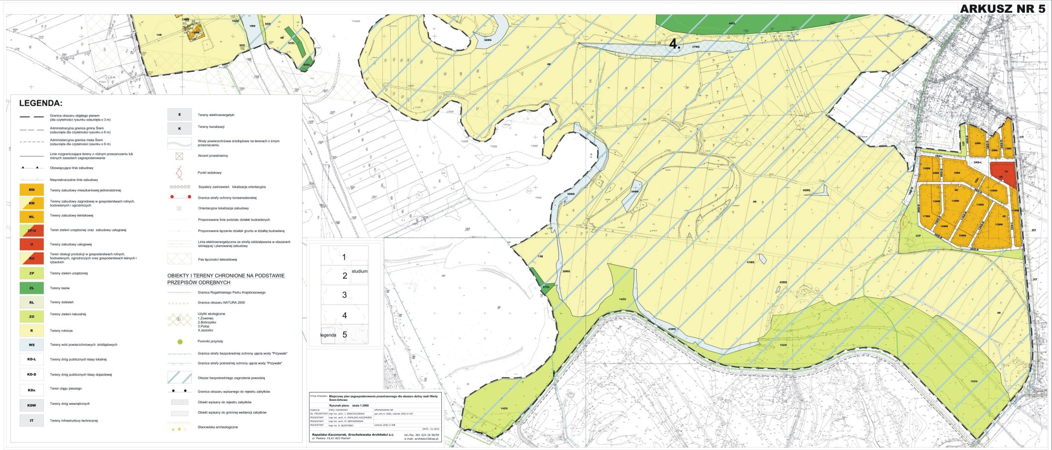
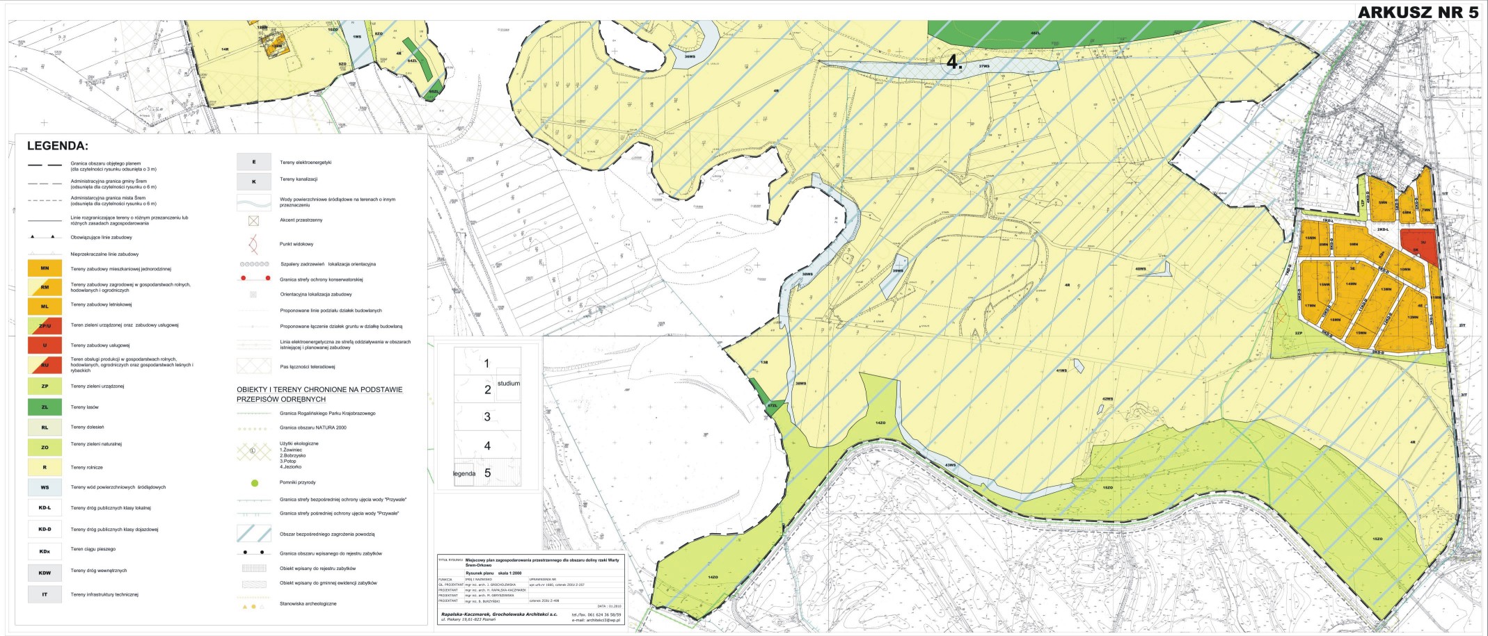
Zał. Nr 1 - arkusz nr 5
Załącznik dokumentu
Autor dokumentu: Zofia Kłak
Udostępnił:
Wartecki Adrian
(2017-03-28 09:50:58)
Ostatnio zmodyfikował:
Pobierz - Zał. Nr 1 - arkusz nr 5 (525 KB)